Mehrfamilienhaus, Wettbewerb 2011, 5. Rang

Minergie-P
Mehrfamilienhaus
Wettbewerb 2011
Immobilien Basel Stadt
Das Paulusquartier ist geprägt von der Stilvielfalt der europäischen Baukultur im Historismus. Das Quartier überzeugt durch eine vornehme Zurückhaltung. Die verschiedenen Gebäude gliedern die Strassenzüge und leisten ihren Beitrag zur Identität des Quartiers. Als weitere Qualität gilt der beidseitig attraktive Aussenraum, sowohl zur Strassen- wie auch zur Hofseite. Diese Themen werden aufgegriffen und vertieft. Der Baukörper reagiert durch gezielte Eingriffe in der Volumetrie zu beiden Seiten unterschiedlich. Das Bauwerk generiert eine eigenständige Adresse für den Bewohner und bildet für das Quartier in seiner bestehenden Qualität eine entsprechende Ergänzung.
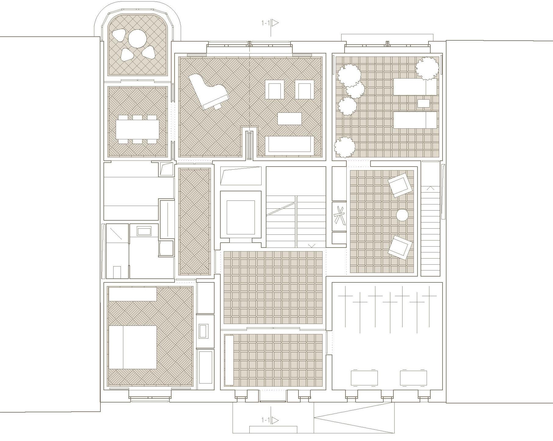
Das Nachhaltige Bauen soll das Ursprüngliche stärken und erlebbar machen. Die vier Grundelemente – Feuer, Wasser, Luft und Erde – lassen den Bewohner und Besucher der Aescherstrasse 12, das Gebäude sinnlich erfahren. Dabei ergänzen und stärken sich Raum, Zeit und Energie. Das ideale Ambiente für den postmateriellen Menschen der den Einklang mit der Natur sucht. Beim Betreten des Gebäudes öffnet sich ein grosszügiger Eingangsbereich mit Treppe und Lift. Rechterhand bietet das introvertierte Kaminzimmer einen öffentlichen Raum um sich zu treffen, oder nur dem warmen Licht des Feuers zu schauen. Das helle Gartenzimmer erlaubt das Überwintern von Topfpflanzen und verbreitet den Geruch der grünen Natur. Es führt weiter in den Garten zu Licht, Luft und Erde. Die Blumenwiese mit Baumgruppe und Sitzplatz ist ein Aussenraum, welcher zu jeder Jahreszeit kontemplative Beschaulichkeit ausstrahlt.
Der Wellbeing-Bereich ist sowohl über das Treppenhaus direkt, oder über eine Verbindungstreppe mit dem Gartenzimmer, welches als Ruheraum dient, erschlossen. Mit Sauna, Tauchbecken und Dusche ermöglicht es das Erleben des Element Wassers mit seinen verschiedenen Facetten.
Das Gebäude wird als Holz-Elementbau mit Stahlbetonkern konstruiert. Als einheimischer Grundbaustoff eignet sich Holz besonders gut für wärmebrückenfreies konstruieren mit geringstmöglichen Grauenergiebedarf. Auf Grund der eigenen Waldbestände der Stadt Basel entstehen sowohl ökonomische wie auch ökologische Vorteile für den Bauherr und das Gebäude. Auch in städtischen Gebieten gewinnt das Holz, nicht zuletzt wegen der breiten öffentlichen Auseinandersetzung mit der Nachhaltigkeit, immer stärker an Präsenz.
Im Bereich der Fluchtwege wird der Brandwiderstand durch den Stahlbeton geleistet. Die Fassade wird mit ergänzenden Massnahmen als entsprechend feuerwiderstandsfähig ausgebildet. Der Brandüberschlag wird durch die horizontalen Bänder gewährleistet. Aus dem eigenen Waldbestand können die Nadelhölzer als Konstruktionsholz, die gerbsäurehaltige Eiche für die robuste Fassade verarbeitet werden. Auf dem Waldgang mit dem Förster lässt sich auch ein kostbarer Nussbaum, eine Wildkirsche oder eine Elsbeere finden, welche die massiven Parkettböden zieren – es entsteht aus eigenem Wald bleibender Wert – Nachhaltiges Bauen in seinem ursprünglichen Sinn.






