Nachhaltiges Wohnen im Alter

Minergie GR-P 003
Solitärbau in öffentlichem Gestaltungsplan
2004 / 2015
Alters- und Pflegeheim Casa Falveng, Domat/Ems
Schweizer Solarpreis 2006 und DETAIL-Preis 2007 – Sonderpreis Energieeffizientes Bauen
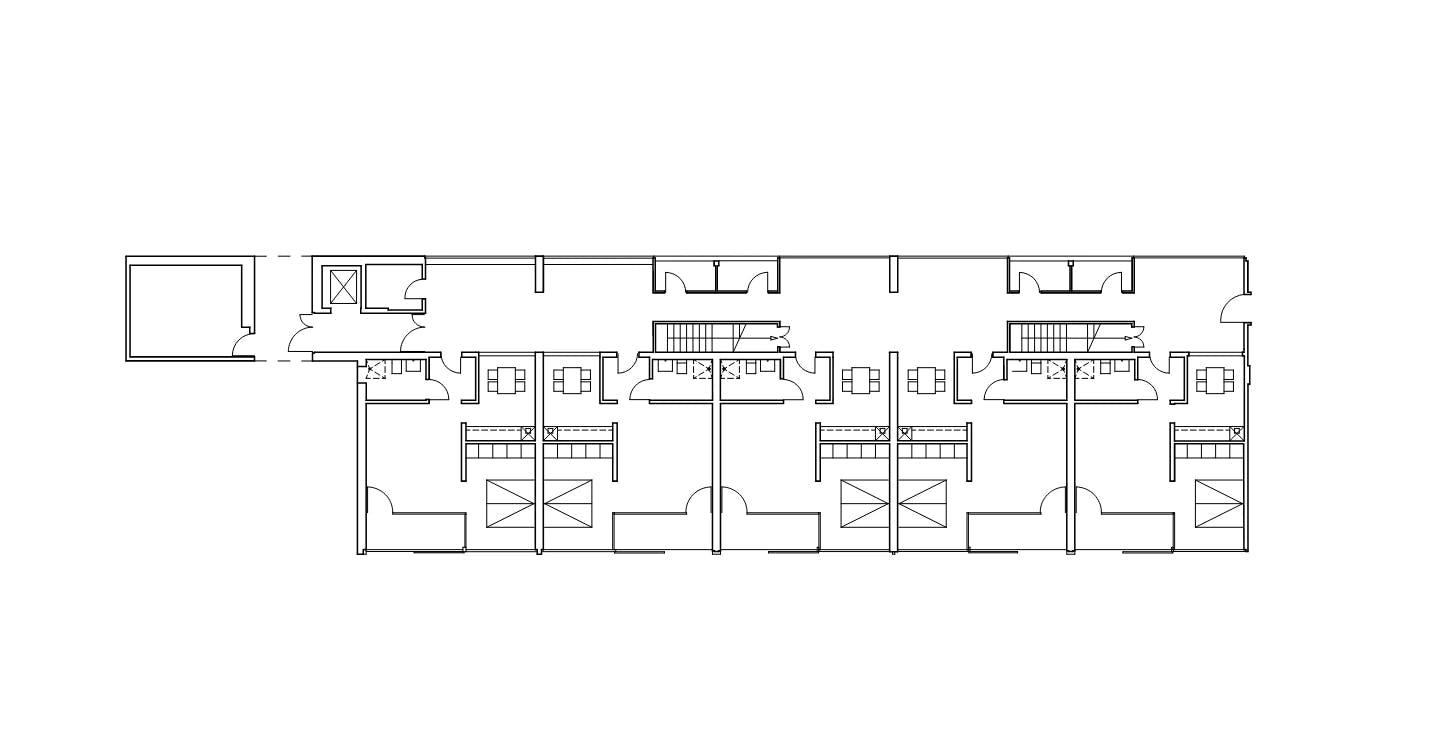
Nach dem Abbruch des ehemaligen Sägereiareals entstand in Domat/Ems in unmittelbarer Nachbarschaft zum Altersheim die Möglichkeit, das Angebot durch Alterswohnungen zu ergänzen. Das Grundstück liegt am Fusse der Tuma Falveng in der Nähe des Naherholungsgebiets. Grosszügige Fensteröffnungen prägen die Nordansicht, die Südfassade ist eine offene Glas-Metall-Konstruktion.
Das zentrale Thema der Gebäudekomposition sind die Bedürfnisse der Bewohner. Grosszügige, behindertengerechte Wohnungen mit einer umfassenden Ausstattung geben jedem Bewohner die Möglichkeit, seine Privatsphäre mit den eigenen Möbeln individuell zu gestalten. Alle Wohnungen sind uneingeschränkt nach Süden ausgerichtet.







