Neubau Mehrfamilienhaus in Ziegelmauerwerk

EnEV 2009 – 21%
Mehrfamilienhaus
Direktauftrag 2013 / 2014-2015
NUWOG Wohnungsgesellschaft der Stadt Neu-Ulm
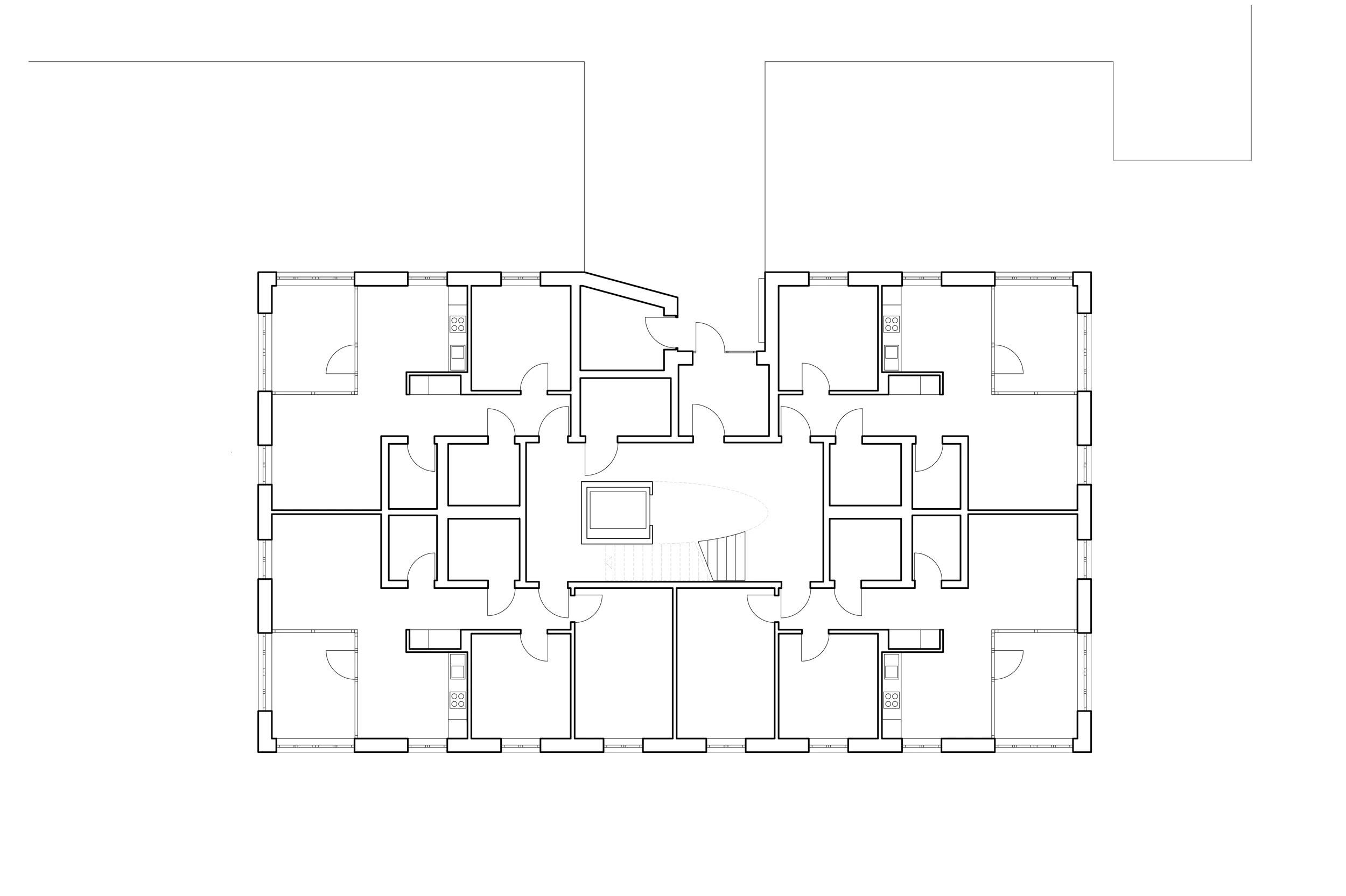
Der Neubau befindet sich im neu entstehenden Wohngebiet Löns- und Ganghoferstrasse im Bebauungsplan M25 in Neu-Ulm. Neben Einfamilienund Reiheneinfamilienhäusern gehört es zu einer Gruppe von drei Mehrfamilienhäusern mit denen es eine kleine Siedlung bildet. Das Projekt der NUWOG ist ein Mehrfamilienhaus mit 16 Wohneinheiten in traditionellem Ziegelmauerwerk, einer klassisch zeitlosen Lochfassade in einem edlen Braunton und Fenstern in einem mattierten Goldton gehalten. Das Gebäude ist von einem grosszügigen Grünraum umgeben. Zu den Freianlagen gehören u.a. ein separater Sitzplatz, sowie gedeckte Abstellmöglichkeiten für Fahrräder. Die besondere Herausforderung dieses Projektes war es, trotz stetig steigender Baupreise, die Anforderung des Bauherrn nach einer hohen Energieeffiz enz, einem sehr engen Kostenrahmen und einer hohen architektonischen Qualität erfolgreich zu realisieren. Das Gebäude zeichnet sich durch eine sehr kompakte und wirtschaftliche Bauweise aus. Trotzdem ist es gelungen, den Bewohnern eine attraktive barrierefreie Wohnanlage mit einem ganz besonderen Treppenhaus zu schaffen. Das äussere Erscheinungsbild ist geprägt durch eine klassisch zeitlose Lochfassade in einem edlen Braunton und Fenstern in einem mattierten Goldton. Eine zusätzliche Gliederung erhält die Fassade durch Riemchen, die mit der Putz- und Fensterfarbe harmonieren. Die Grösse der Wohnungen reicht von zwei Raumwohnungen mit 50 m2, über Drei-Raumwohnungen mit 65 m2, bis zur Vier-Zimmerwohnung mit 94 m2. Sie zeichnen sich besonders durch den offenen Grundriss im Wohn- und Essbereich, der sich um einen Wintergarten – Jahreszeitenzimmer – herum gruppiert aus. Die hohe Wohnqualität entsteht durch grosszügige Räume, hochwertige Materialien und sehr hellen Räumen mit grossen Fenstern.








