Saniert und Fassade erhalten

Minergie – Standard
Mehrfamilienhaus
Direkrauftrag 2014 / 2015- 2016
Residenzia Real Estate AG
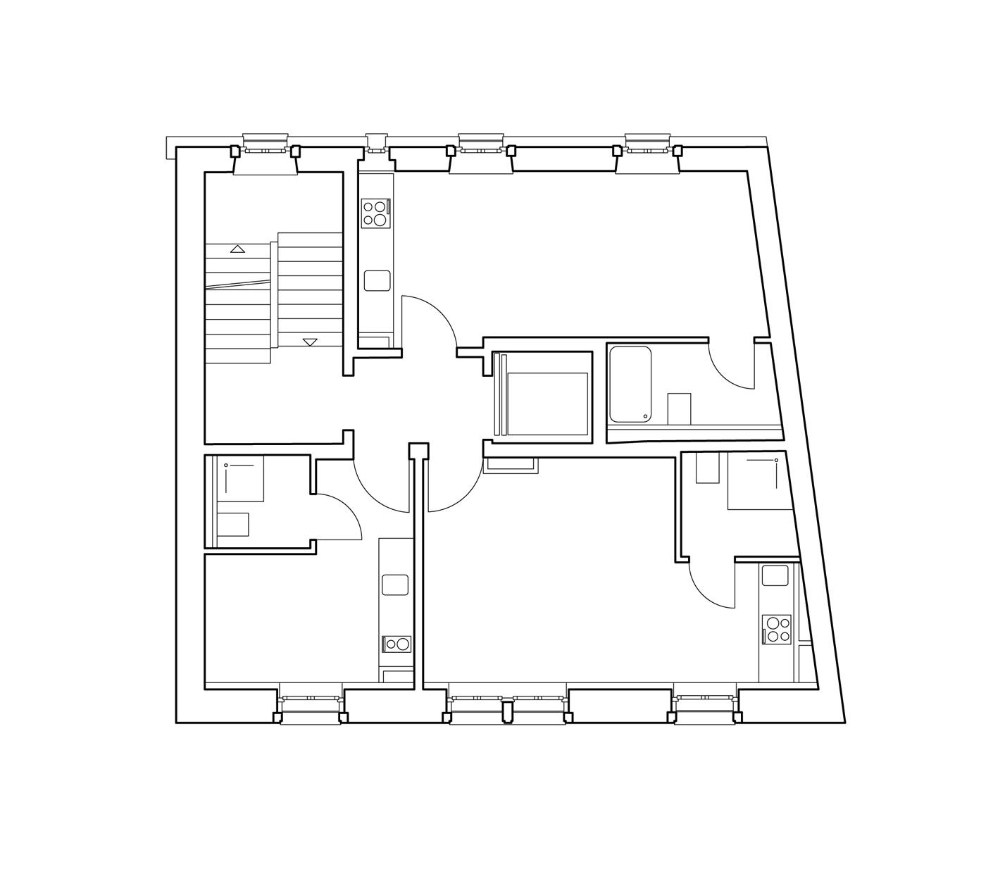
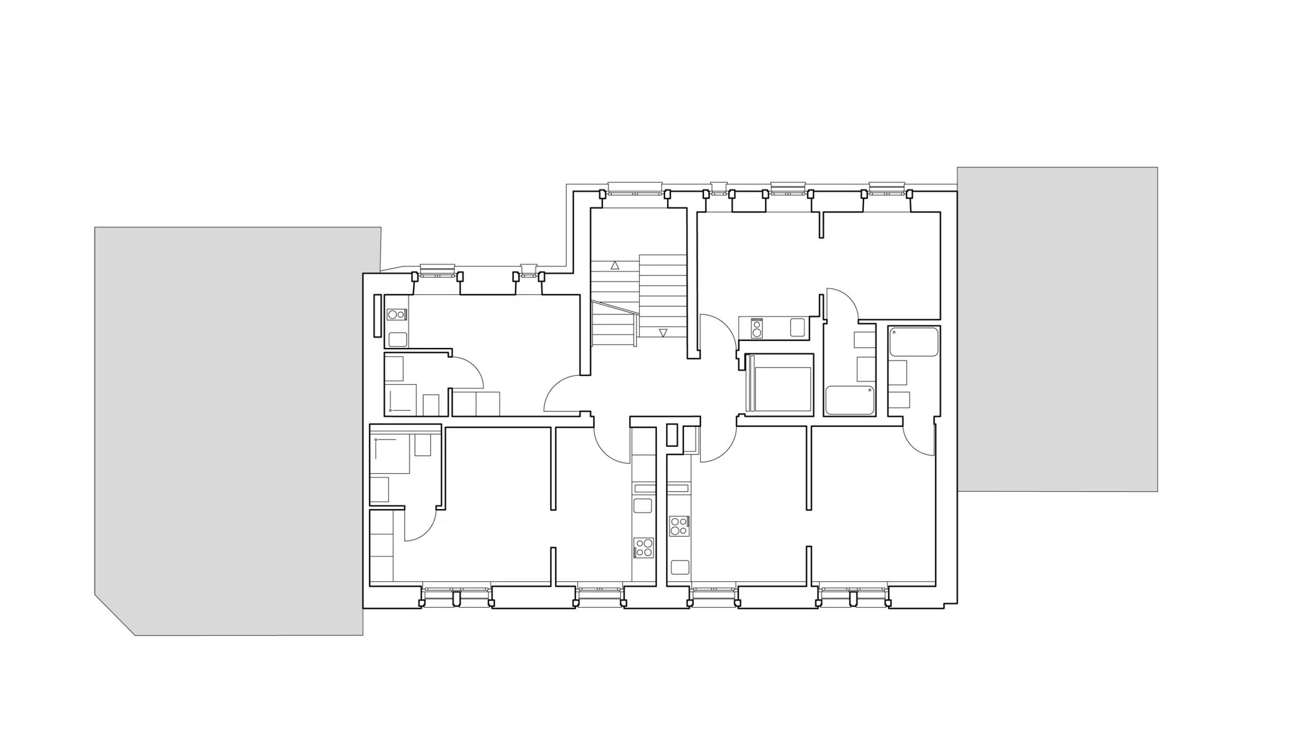
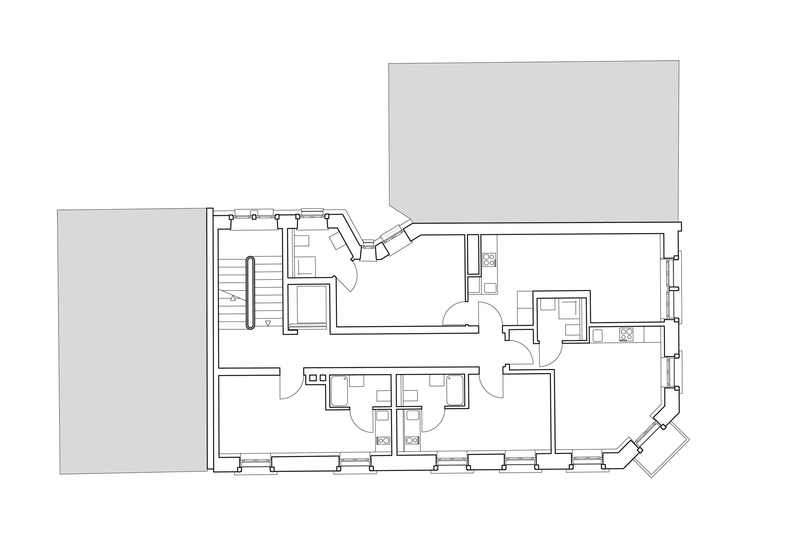
Für drei 100-jährige Stadt-Wohnhäuser in den Kreisen 3 und 4 in Zürich haben Schwarz Architekten mit einer eigens entwickelten Matrix ein umfassendes Sanierungskonzept ausgearbeitet. Die Totalsanierung umfasste die komplette Entkernung, die statische Änderung, der Einbau neuer Aufzugsanlagen, neue Grundrisse und eine umfassende Fassadensanierung. Die sanierten Wohnungen entsprechen heute räumlich wie auch energetisch dem neusten Standard. Trotzdem haben die Gründerzeit-Wohnhäuser mit ihren charakteristischen Fassaden ihren ursprünglichen Charme nicht verloren.
In den ehemaligen Arbeiterquartieren, Kreis 3 und 4 in Zürich, haben Schwarz Architekten drei 100-jährige Wohnhäuser saniert. Für die drei Stadt-Wohnhäuser hat das Architekturbüro mit einer eigens entwickelten Matrix ein umfassendes Sanierungskonzept ausgearbeitet. Dieses umfasste die komplette Entkernung, die statische Änderung, der Einbau neuer Aufzugsanlagen, neue Grundrisse und eine umfassende Fassadensanierung mit Innendämmung. Dank erheblichen Verbesserungen des Wärmeschutzes in Fassade, Fenster, Dach und Untergeschoss, wurde für die drei Stadthäuser der Minergie-Standard erzielt.
Mit ihren typischen Fassaden prägten die Stadthäuser mit Baujahr: 1910, 1927 und 1935 die beliebten Wohnquartiere für viele Jahre. Damit die Fassaden ihren ursprünglichen Charme behalten, wurden die Gebäude strassenseitig innen wärmegedämmt. Zusätzlich wurde ein spezielles high-tech Verfahren angewendet, das die ursprüngliche sehr wertige Fassadenstruktur der Wohnhäuser komplett erhalten und bewahrt hat. So konnte ein Stück der alten Stadtstruktur konserviert werden, ohne auf die zeitgemässen Standards verzichten zu müssen. Neben der Fassadensanierung wurde die Dacheindeckung komplett erneuert sowie der Wärme- und Schallschutz massiv verbessert. Auch die Vertikalstränge wurden komplett saniert.
Ein besonderes Augenmerk wurde dabei auf die Detailausbildung der Geschossdecken gelegt, wo die Holzbalkendecke und die neu wärmedämmende Wand zusammentreffen. Ebenfalls musste die Gebäudetechnik komplett erneuert werden. Zudem wurden die Wohnungsgrundrisse neu gestaltet und ein Lift integriert, so dass die Wohnungen neu den behindertengerechten Normen entsprechen. Die Wohnungen wurden mit neuen, modernen Küchen und Bädern ausgestattet und die Fenster ersetzt. Zudem kommt ein in die Brüstung integrierter Fensterlüfter zum Einsatz. Dieser sorgt für einen optimalen Luftaustausch nach Minergievorschriften und schafft ein gesundes Raumklima, ohne dabei aufwendige Leitungsführungen der Zu- und Fortluft zu generieren. Für die Bewohner bieten sich durch die umfassende Sanierung mehr Wohnkomfort und neue Lebensqualität.
Professor Dietrich Schwarz, Geschäftsführer von Schwarz Architekten: «Die drei Wohnhäuser stammen alle aus der Gründerzeit und sind charakteristisch für deren Gruppe innerstädtischer Altbauten. Mit der energieeffizienten Totalsanierung haben wir für die drei Wohnhäuser den Minergie- Standard erreicht. Die sanierten Wohnungen entsprechen räumlich wie auch energetisch den neusten Standards».
Das Architekturbüro Dietrich Schwarz Architekten AG aus Zürich versteht nachhaltiges Bauen als ganzheitliche, zukunftstaugliche Entwicklung von Siedlungen, die längerfristig einen Mehrwert für Wirtschaft, Gesellschaft und Umwelt bieten. Dietrich Schwarz ist Gründer, Geschäftsführer und Verwaltungsrat von Dietrich Schwarz Architekten AG. Er ist zudem Professor für nachhaltiges Bauen an der Universität Liechtenstein.

















