Energetische Sanierung

Minergie, ZH-4250 bis ZH-4264
Mehrfamilienhaus
Planungsauftrag 2009-10 / 2011-12
Seewarte AG Zürich
PRIX LIGNUM 2012, 2. Rang, Region Nord
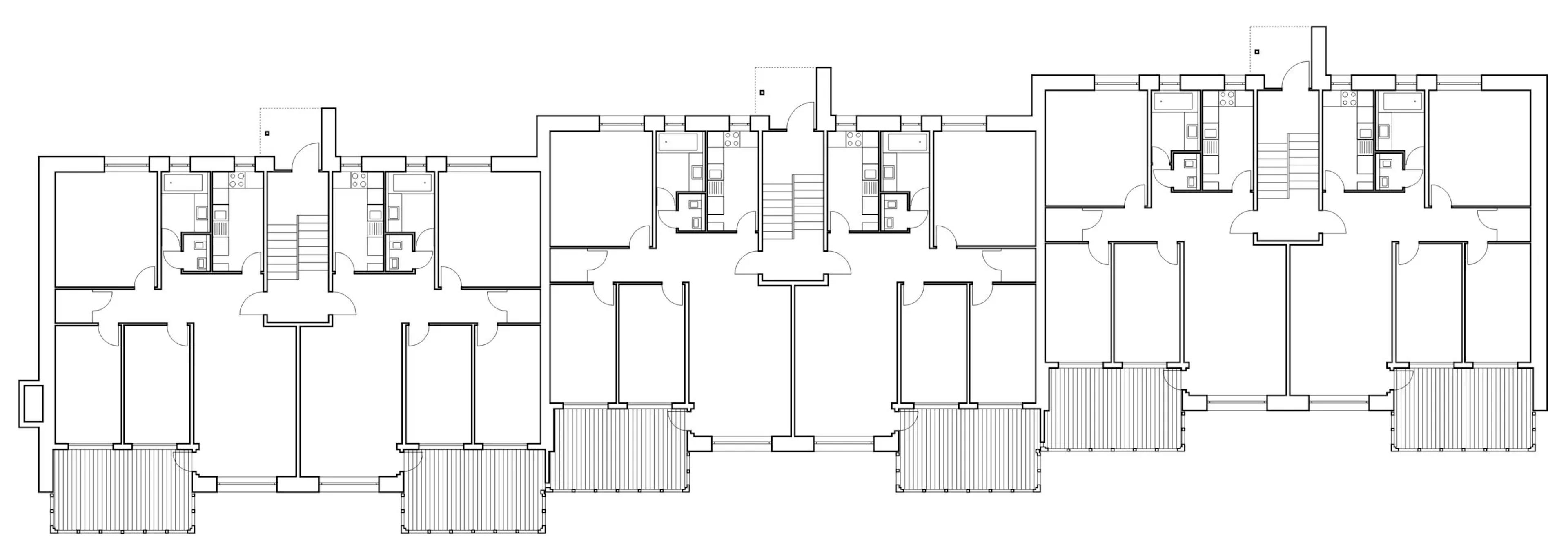
Im Langacher, Greifensee, eine Göhner-Siedlung aus dem Jahr 1967, wurde total saniert. Der Gebäudekomplex mit sechs Gebäuden und 87 Wohnungen wurde seit der Erstellung lediglich in Stand gehalten. Es bestand umfassender Sanierungsbedarf, da der jährliche Unterhalt entsprechend hoch war.
Mit einer Sanierung auf dem Niveau einer Minergie-P-Eco Siedlung –ohne Lüftung (deshalb kein Zertifikat) – konnte dem Bauherren ein nachhaltiges und für die nächsten 30 Jahre entsprechendes Sanierungskonzept vorgeschlagen werden. Wesentlicher Teil des Auftrages war es, die Rentabilität einer solchen energieeffizienten Sanierung aufzuzeigen. Durch die ökonomisch effiziente Wahl einer vorgefertigten Holzelementfassade konnte gewährleistet werden, dass die Wohnungen während der Sanierung bewohnt und vermietet bleiben.
Neben den ökonomischen Vorteilen und Vorteilen im Ausführungsablauf konnte durch den Werkstoff Holz sowohl eine Aufwertung des äusseren Erscheinungsbildes, wie auch energetisch die bestmögliche Fassadensanierung realisiert werden. Durch die hochwertige Aussenhülle wurden die Sanierungszyklen wesentlich verlängert.
Eine wesentliche Aufwertung der Wohnungen war der Umbau der Balkone in Jahreszeitenzimmer. Die bestehenden privaten Aussenräume wurden verbreitert und in den Dämmperimeter eingeschlossen. Die bestehenden Wärmebrücken der Balkone konnten so ganzheitlich eliminiert werden, zusätzlich konnte den Bewohnern ein ganzjährig nutzbarer Raum zur Verfügung gestellt werden.
Im Inneren des Gebäudes wurde ein Konzept erstellt, das die Grundrisse mit minimalen Aufwand an den heutigen Stand der Bedürfnisse angleicht. Bezüge von Wohnen, Kochen und Essen werden geschaffen. Küchen und Bäder wurden bei der Innensanierung ersetzt.
Für den Investor konnte ein ausgewogenes Konzept ausgearbeitet werden, indem die sozialen, die ökonomischen wie auch die ökologischen Parameter der Nachhaltigkeit in Gleichgewicht gebracht wurden. Es entstand somit eine Win-Win Situation für Vermieter und Mieter.







