Wettbewerb mit GU 2021, Dienstleistung

Netto-Null
Dienstleistungs- und Bürogebäude
2021
Kanton Graubünden, Departement für Infrastruktur, Energie und Mobilität
In der Nautik ist Wissen und Weitsicht gefragt, um die Ziele auf hoher See zu erreichen und den existenziellen Gefahren auszuweichen. Diese Fähigkeit entspricht einem nachhaltigen Handeln. Im Hier und Jetzt Entscheidungen fällen um Taten folgen zu lassen, welche uns eine gute Zukunft bescheren, heisst Verantwortung übernehmen. Diese Prinzipien liegen ebenfalls synchron zu dem Handeln im Polizeidienst zugrunde.
Die Vorgabe eine konsequent nachhaltige Baute zu erstellen, entsprechend dem Aktionsplan Green Deal für Graubünden (AGD), fordert ein Hinterfragen sämtlicher, aktueller Planungs- und Bauprinzipien in Bezug auf Klimaschutz und -anpassung. So wurden für das vorliegende Projekt konkrete und spezifische Entwurfsprinzipien zugrunde gelegt, um dem AGD gerecht zu werden. Hierzu zählen u.a. die Nachhaltigkeit als integralen Bestandteil der Entwicklung und das Lebenszyklus Bauen.
Der «Green Deal» bietet das Potenzial, dass die Treibhausgasemissionen zwischen 2045 bis 2060 auf Null gesetzt werden, das Schlagwort heisst Netto-Null. Das vorliegende Projekt erreicht dies nicht nur im Betrieb des Hauses, sondern darüber hinaus für die Mobilität der Einsatzfahrzeuge und für die Erstellung des Gebäudes.
Für die Erreichung der hochgesteckten Energieziele wird die gesamte Genetik des Gebäudes bereits im Baukonzept optimal ausgerichtet. Damit werden die grossen kosten- und zeitsparenden Hebel der frühen Projektierungsphase genutzt. Diese sind neben der minimierten grauen Energie und der ausreichenden erneuerbaren Solarenergie vor allem die baukonstruktiven Massnahmen.
Eine grosszügige Befensterung mit feststehendem Sonnenschutz ermöglicht passivsolare Energiegewinne ohne Unterhalt und die jederzeit mögliche individuelle, natürliche Lüftung durch die Fensterflügel in jedem Büroraum. Durch die diagonal angeordneten Begegnungsräume zu den beschatteten Balkonen und via den Korridoren lässt sich zu dem über eine Querlüftung eine natürliche Nachtauskühlung erreichen. Das projektüberspannende Dach ist als hinterlüftetes Kaltdach ausgeführt, so wird ein Aufheizen des darunterliegenden Bürogeschosses unterbunden.
Mit diesen Low-Tech Konzepten werden die technischen Komponenten zur Sicherstellung des Komfortbereichs automatisch minimiert. Dabei wird auch auf bewährte aber in der Komplexität minimierte Haustechnik gesetzt: einerseits eine hocheffiziente Erdsonden-Wärmepumpe mit komfortablen Free-Cooling im Sommer zur gleichzeitigen Regeneration der Erdsonde und andererseits eine Komfortlüftung mit Wärmerückgewinnung, bei der die Frischluft in die Büroräume CO2-gesteuert minimal eingeblasen und über Kaskaden-Lüftung im Mittelbund abgesaugt wird.
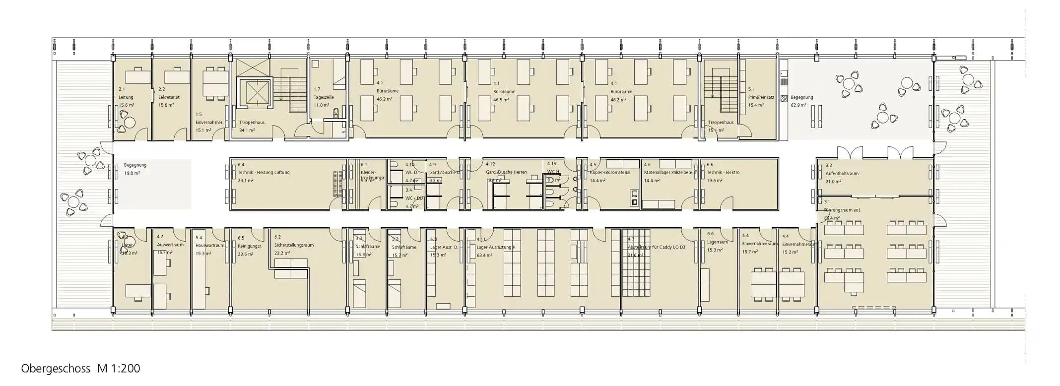
Durch den Verzicht auf eine Tiefgarage wird die gesamte Parkierung inkl. LKW-Waage ebenerdig über eine interne, praktische Erschliessungsstrasse abgewickelt. Dies erlaubt eine hocheffiziente Flächen- und Ressourcennutzung. Ebenfalls im Erdgeschoss wird der Haupteingang mit dem Kundenbereich für eine klare Adressbildung zur Sommeraustrasse situiert. In demselben Bereich führt eine behindertengerechte Treppe / Lift – Erschliessung ins Obergeschoss. Eine zweite separate Treppe für die Polizeibeamt*innen verbindet dieses direkt mit den Einsatzfahrzeugen in der Einstellhalle.
Die Büroflächen sind als Kommandobrücke im ersten Obergeschoss über der Parkierung angeordnet. Dieses Geschoss ist als hocheffizienter, flexibel unterteilbarer Drei-Bünder organisiert. Zur kühlen Hauptfassade im Norden, an der Sommeraustrasse werden die Büroräume, im Süden zur lärmbelasteten Autobahn sind weniger stark frequentierte Räume angeordnet.
In dem Projekt `Kommandobrücke’ werden für eine Netto-Null Ökobilanz bei der Erstellung entscheidende Hebel genutzt. Ein weitestgehender Verzicht auf Beton und damit auch auf eine Tiefgarage mit belastenden Erdbewegungen, führt zu der entscheidenden Reduktion von 350 Tonnen CO2. So wird Netto-Null bei der Erstellung erst denkbar und möglich. Dies resultiert ein rein oberirdisches Projekt mit dem Mehrwert einer sehr grosszügigen Verkehrserschliessungssituation von Einstellhalle und wettergeschütztem Vorhof.
Der vorherrschende Baustoff ist Konstruktionsholz aus der Bündner Forstwirtschaft. Dieses vermag während der Wachstumsphase des Baumes im Wald, pro Kubikmeter eine Tonne CO2 einzulagern. Mit den verbauten 1’000 m3 Bauholz wird mehr CO2 dauerhaft der Atmosphäre entzogen als das gesamte Gebäude durch dessen Erstellung freisetzt. Gleichzeitig entsteht ein identitätsstiftendes Bauwerk mit starkem Bezug zur lokalen Bautradition.
Ein grosses, begrüntes Photovoltaik-Dach überspannt fast das ganze Areal. Dieses liefert 360’000 kWh Strom pro Jahr für das Gebäude, die Nutzer, sowie die gesamte Flotte der Polizeifahrzeuge. Auf fassadenintegrierte PV-Flächen gegen Süden wird aus Gründen der winterlichen Horizontalverschattung verzichtet. Neben dem klaren Bekenntnis, zur erneuerbaren Energie aus Sonnenkraft, verfolgt das Gebäude eine klare Low-Tech Strategie in der Gebäudetechnik. Die Energy-Payback-Time von der Photovoltaikanlag beträgt aktuell 3.6 Jahre. Mit dem «Green Deal» wird auch für die Produktion derselben, erneuerbare Energie eingesetzt. Damit wird sich diese in Zukunft auf zwei Jahre reduzieren. Mit dem Einsatz von Salzwasser als Elektrolyt sind auch die Batterien kein ökologisches Handicap mehr.









