Sanierungsprojekt an der Seefeldstrasse 120

Minergie – Standard
Wohnhaus und Restaurant
Direktauftrag / 2016-2017
Privat
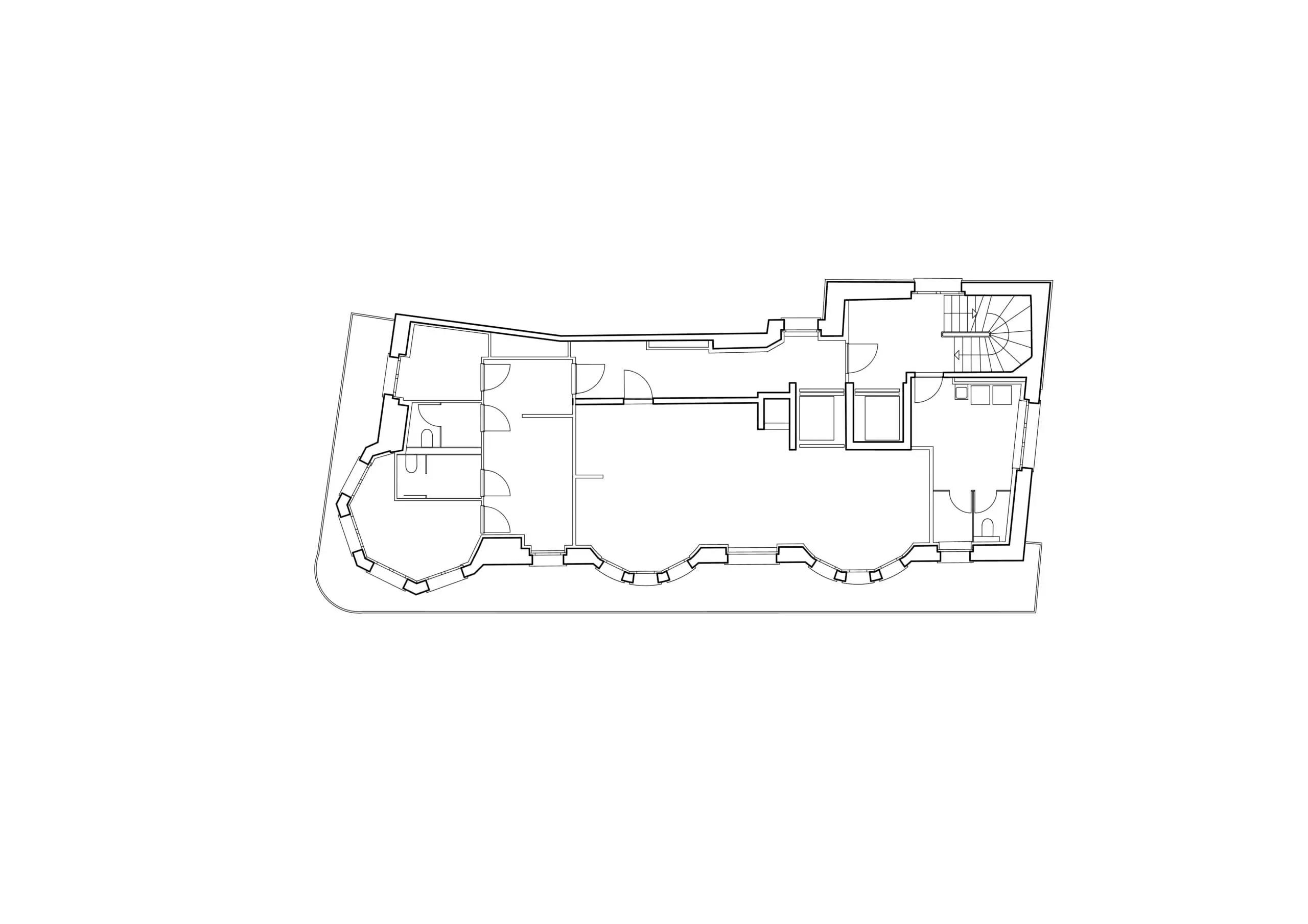
Mit einem Totalumbau wird das Gebäude innen gesamthaft erneuert und energetisch saniert. Die Wohnungen werden im Neubaustandard erstellt, das Gebäude wird im Minergie Standard zertifiziert. Ergänzend zum Treppenhaus wird ein Lift eingebaut. Vier Wohnungen sind für Personen mit Gehbehinderungen geeignet. (Gemäss SIA Norm 500 ).
Es wird ein Personenlift für die Wohnungen vom UG bis 5.OG neu erstellt. Ein Warenlift verbindet die Küche im 1.OG mit dem Restaurant im EG und den Kühlzellen im UG. Ein kleiner Speiselift kann für die ausschließliche Nutzung des Restaurants in den dafür vorgesehenen Liftschacht durch den Mieter gebaut werden.
Die Fassaden werden instandgesetzt und von innen gedämmt, so dass das ursprüngliche Erscheinungsbild wiederhergestellt wird. Das Dach und die Gauben werden saniert und teilweise erneuert.
Es werden Fenster mit Isolierverglasung eingesetzt. Innen ist der Rahmen aus Holz und weiss gestrichen. Aussen ist er aus Aluminium und bronzefarben eloxiert.
Als Sonnschutz sind Rollläden aus Aluminium mit einer Pulverbeschichtung in Bronze vorgesehen. Die Bedienung erfolgt elektrisch über einen Handtaster. An der Hauptfassade wird das Vordach erneuert. Der Mieter kann nach Absprache eine Markise am Vordach an den dafür vorgesehenen Aufnahmepunkten befestigen.
Beiden Die Haustüren, Mieter und den Anlieferungstüre sind auf der Hofseite und sind barrierefrei. Die Briefkastenanlage befindet sich Außen an der Hofseite.
Die bestehende Treppe wird instandgesetzt. In den Korridoren werden Platten verlegt. Wohn- und Schlafräume (2. Bis 5. OG). Die Innenwände sind verputzt und mineralisch in einem hellen Farbton gestrichen. Der Bodenbelag ist ein Parkett mit versiegelter Oberfläche. Die Decke ist weiss verputzt. Die Türen sind aus Holz und gestrichen. Die Zargen aus Stahl gestrichen.
Es werden die notwendigen Lehrrohre für Sanitär und Elektrische Anschlüsse erstellt. Der Ausbau der Küchen in den Wohngeschossen erfolgt durch den Mieter.
Die Nasszellen sind mit Duschen, Trennwänden, Waschbecken, Spiegelschrank und Toilette im mittleren Preissegment ausgestattet. Der Boden ist gefliest, die Wände sind gefliest und verputzt. Die Decken sind verputzt.
Für jede Wohnung ist ein Abstellraum im Kehlgeschoss vorhanden.
Die Elektroinstallationen werden gesamthaft erneuert. Es sind Steckdosen, Schalter und Anschlüsse für Telefonie, Internet, Fernsehen und Radio gemäss Neubaustandard in den Wohnungen installiert. In den Zimmern sind Lampenstellen an der Decke vorgesehen.
Auf dem Grundstück sind 8 Veloplätze verfügbar. In den angrenzenden Strassen sind Parkplätze „blaue Zone“ vorhanden.
Drei Etagen des Gebäudes werden zum Ausbau für ein Restaurant im Rohbau erstellt. Im 1.Obergeschoss werden die Küche sowie die Personalräume und -toiletten platziert. Der Ausbau der Personalräume und -toiletten, der Küche inkl. sämtlicher Sanitär-, Elektro-, Lüftungs- und Wärmeleitungen innerhalb der Mietergrenze werden durch den Mieter erstellt. Die Lagerräume und Kundentoiletten werden im Untergeschoss sein. Im Untergeschoss können durch den Mieter Kühl- und Tiefkühlzellen eingebaut werden. Im Erdgeschoss wird ein Restaurant, offenen Gastraum mit Bar und Aussensitzplätze sein.








