Neubau Büro-, Labor- und Werkstattgebäude

Minergie-P-Eco / SNBS 2.0 Platin (1. Gebäude überhaupt im ETH Bereich)
Büro-, Labor- und Werkstattgebäudes
Planerwahlverfahren 2019-21 / 2021-22
Eidg. Forschungsanstalt WSL vertreten durch EMPA Immobilienmanagement
Der SLF Campus in Davos besteht aus zwei L-förmig angeordneten Gebäuden, drei- bis viergeschossig, aus den frühen 1980er Jahren im Stil der Spätmoderne. Das Gebäude C steht an der östlichen Grenze der Parzelle in Längsrichtung ost-westorientiert. Die Gebäude A und B (ein zusammengebauter Körper) erstrecken sich längs der Flüelastrasse nord-südorientiert. Westseitig der Parzelle befindet sich eine eingeschossige Werkstatt (Gebäude D), ost-westorientiert, an die in den durch die Gebäudeanordnung gebildeten Hof hineinragende eingeschossige überhöhe Montagehalle angeschlossen ist. Nordseitig erstreckt sich ein eingeschossiges Kältelabor (Gebäude F), leicht diagonal zum Hof angeordnet, welches den Hof abschliesst gegen die dort nördlich verlaufende und den Campus begrenzende Bahnlinie der Rätischen Bahn.
Das eingeschossige Werkstattgebäude samt Montagehalle wird abgebrochen und durch einen dreigeschossigen Neubau ersetzt. Das Volumen des Neubaus integriert die neue Montagehalle. Dadurch erhält der Neubau eine einfache Geometrie und bereinigt die Hofsituation. Die Erschliessung der Montagehalle erfolgt über den Hof, ansonsten wird der Hof bis auf zwei Elektroparkplätze von Verkehr freigehalten. Damit kann der Hof zukünftig auch eine soziale Funktion erfüllen. Aussenräumliche Sitzgelegenheiten ermöglichen den Mitarbeitenden des SLF, ihre Pausen auch im Freien zu verbringen.
Die Anordnung des Neubaus verbessert auch hinsichtlich der Erweiterbarkeit das Potential des Campus`. Verhindert die Positionierung der bestehenden Montagehalle aufgrund von Abstandsvorschriften eine Verdichtung in Richtung Norden und Osten momentan, so ist das durch die Neuanordnung des Volumens in Zukunft möglich.
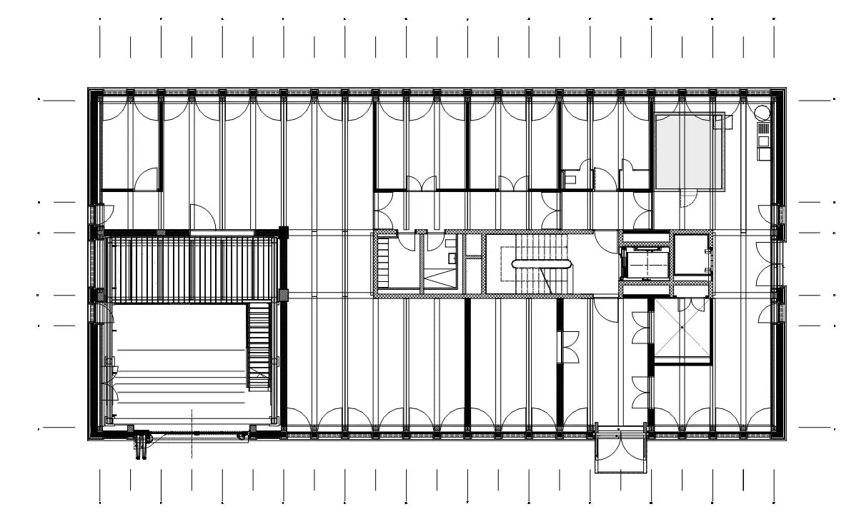
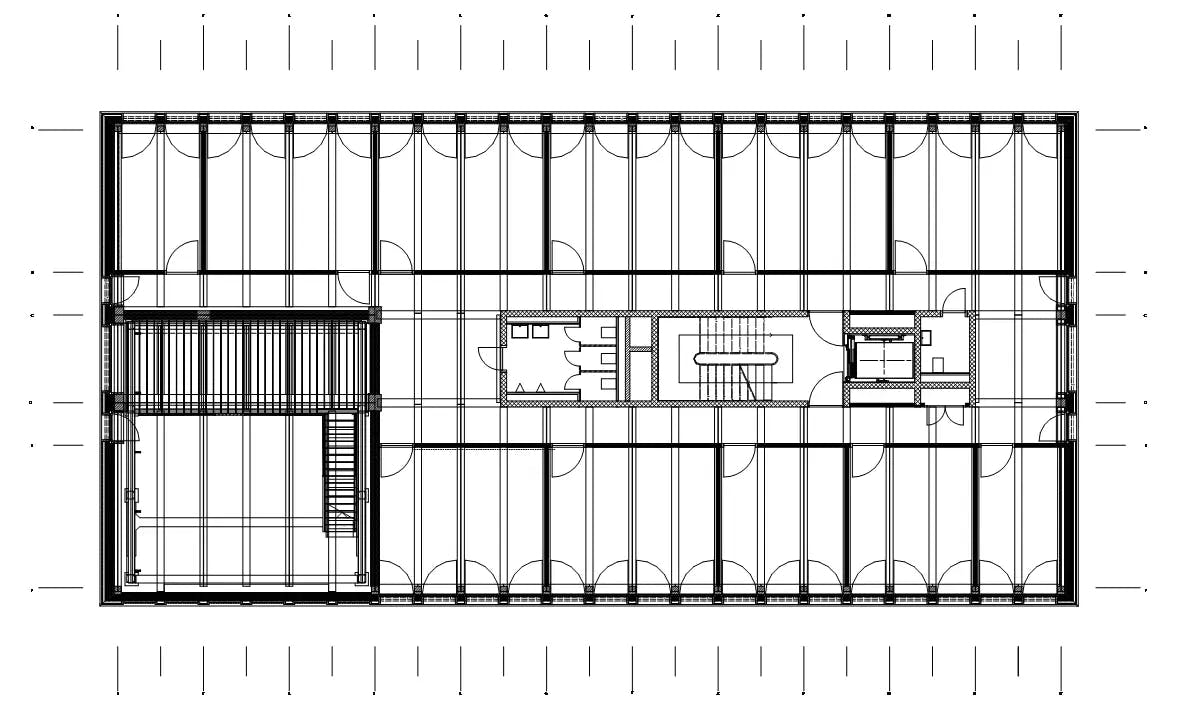
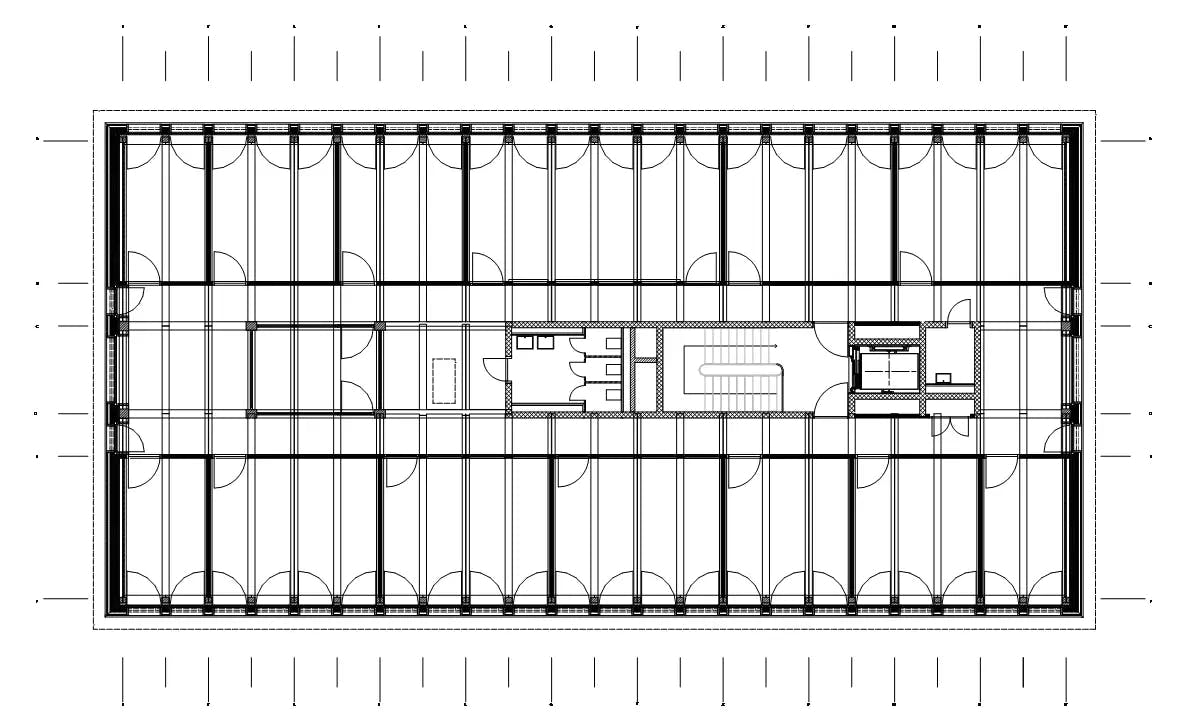
Der Neubau Gebäude D wird als dreigeschossiger, nicht-unterkellerter dreibündiger Holzskelettbau im Raster 1.45m ausgeführt. Im Erdgeschoss findet sich bis zu einer Höhe von ca. 1.20m eine Ortbetonwand mit Betonlisenen und Ortbetonstützen (Prallschutz Ladefahrzeuge.) auf denen aufbauend der Holzbau erstellt wird. Der Kernbereich des Gebäudes, in dem die notwendigen Infrastrukturen untergebracht sind wie Nasszellen, Erschliessung, Garderoben u.dgl. ist in Ortbeton ausgeführt. Der übrige Teil des Gebäudes mit vorfabrizierten Holzdecken- (Holzbetonverbundkonstruktion) und Wandelementen. Im Erdgeschoss wird die Werkstatt eingerichtet, in den Obergeschossen die Büro-, Labor- und Lagerräume. Die Trennwände sind im System liegend nicht-tragend ausgeführt. Die Geschosshöhen liegen im Erdgeschoss bei 3.75m, in den Obergeschossen bei 3.40m.
Im Sinn einer strikten Systemtrennung sind die Infrastrukturleitungen wie Elektro, Lüftung, Heizung getrennt und offen (über abgehängte Decken oder Vorsatzschalen) zugänglich ausgebildet und bleiben somit flexibel nutzbar. Die Anordnung der Technikräume, die Auslegung der Kapazitäten, Leitungsführungen und die Statik im Holzskelettbau erlauben eine flexible, auch nachträglich änderbare Einteilung betreffend Grössen Zellenbüros, Open-Space-Büros. Die Statik ist derart dimensioniert und der Brandschutz derart ausgelegt (Gebäudekategorie «mittlere Höhe»), dass eine nachträgliche Aufstockung des Gebäudes um ein Geschoss möglich sein wird ohne weitere notwendige Ertüchtigungen.
Auch die Fassade wird durch die Konstruktion des Hauses geprägt. Im Sockelbereich kommen vorfabrizierte Betonfertigteilelement zur Verwendung, ab Brüstung Erdgeschoss werden die Fassaden mit einer vorbehandelten Holzschalung und Fensterbändern aus Holzaluminiumfenstern geplant. Im Brüstungsbereich werden stehende PV-Module vorgehängt. Die Verschattung der Fassade erfolgt über Rafflamellenstoren. Das Gebäude wird mit all seinen oben beschriebenen Eigenschaften einen eigenständigen Charakter am SLF-Campus Davos ausstrahlen, aber sich über die Kubatur, die Konstruktion und die ruhige Ausstrahlung trotzdem nicht als Solitär darstellen, sondern in den Kontext der bestehenden Bauten einfügen.
Fotografie: bollephotography, Joanna Bolle









